Der ReintalerhofAbschnitt 4Neue Blütezeit und das Ende
|
|
1946Schon bald nach dem zweiten Weltkrieg wird der Reintaler Hof wieder bewirtschaftet und betrieben. Herr Prof. Ernst Cramer erzählt in seiner Festrede anlässlich der 59. Convention am 25. August 2006: "Unabhängig davon veranstalteten fahrende Mitglieder der Militärregierung von Bayern ein erstes deutsch-amerikanisches Kolloquium. Es fand in jener Zeit auf dem Reinthaler Hof oberhalb der Partnach-Klamm in der Nähe von Garmisch-Partenkirchen statt." |
|
![]() |
Am 7. Dezember 1946 berichtet die Mittelbayerische Zeitung in ihrer Ausgabe No. 108 über eine Konferenz zur deutschen Jugendfrage. In diesem Beitrag wird auch über die Gewerkschaftsjugend geschrieben und über den Reintalerhof ("ein wunderbarer Hochgebirgshof, inmitten der herrlichsten, alpinen Landschaft"), der der Jugend als Erholungsheim zur Verfügung steht. |
Gewerkschafts-Schüler Zeitung von 1946So schließt sich mancher Kreis: Und viele weitere nachdenkliche und heitere Beiträge, |
![]() |
|
Josef Kurth war der Autor des Buchs: "Bierdimpfels Revolution. Eine nicht ganz frei erfundene deutsche Geschichte", das 1946 im Rheinischen Volksverlag in Mainz erschienen ist. Er unterrichtete nach 1945 u. a. an der Georg-von-Vollmar-Schule in Kochel. |
1947 |
|
| Im Weekly Information Bulletin vom 30. 06. 1947 des OMGUS (Office of Military Government for Germany (U.S.) ) findet sich ein Bericht von Alice Hanson Cook mit zwei Bildern über die Trade Union School am Rheintaler-Hof. | ![]() |
"Scenes at the Rheintaler-Hof near Garmisch, used as a trade union school bei the Bavaraian Federation of Labor." |
"View of the building returned to the unions a few months ago. Gustav Schiefer, president of the Bavarian federation, surounded by students picked from various unions for the two-week course." |
Vermutlich ebenfalls um 1947 findet sich in einem Dokument "A Description of Worker' Education today" eine Beschreibung von 14-tägigen Kursen, die am Reintalerhof durchgeführt wurden. |
![]() |
In der Gewerkschaftszeitung Hier ein ausführlicher, bebilderter Bericht über |
|
|
"Frauen auf dem Raintaler Hof!" Von Käthi Sand |
Kurse im Raintaler Hof |
|
Winter im Raintaler Hof Der Hof wird von Dezember 1947 bis April 1948 für die Mitglieder für Ferienaufenthalte freigegeben. |
Der Engländer F. Burschell berichtet in der BBC |
Vom 29. 6. bis 4. 7. 1947 finden u. a. auch auf dem Reintalerhof Nachbesprechungen und Konferenzen im Anschluss an die erste Internationale Jugendkundgebung am 28. Juni 1947 statt. |
Der Reintalerhof steht ab 4. Juli 1948 wieder für Erholungszwecke zur Verfügung. |
Der Raintaler Hof wirbt. |
Gewerkschaftsheime wieder geöffnet. |
|
Am 4. März 1949 schickt ein(e) W. Klauber diese Postkarte nach Nürnberg und berichtet von winterlichen Bergen, in denen sie in den letzten Tagen auf dem Reintalerhof fast eingeschneit wurden. |
Diese Karte ging 1951 nach Stein bei Nürnberg. |
1949 erscheint in "Aufwärts", der Jugendzeitschrift des |
|
![]() |
1949 erscheint in der Mittelbayerischen Zeitung, Ausgabe Nr. 134 vom 19.11.1949 ein Artikel zum geplanten und wohl schon begonnenen Kraftwerksprojekt im Reintal. |
Im Januar 2012 meldet sich Frau Veronika Fries bei mir. Und sie erzählt von ihren Erlebnissen auf dem Reintalerhof: Frau Fries, eine geborene Waldkirchnerin, kam mit 17 Jahren nach der Währungsreform auf den Reintalerhof, der 1949 wieder der Gewerkschaft gehörte. Verwalter waren das Ehepaar Riedl aus dem Bayerischen Wald. In dieser Zeit firmierte der Reintalerhof als "Alpenhotel - H. Riedl". Das Jugendheim, oberhalb des Reintalerhofs wurde mit Schulklassen belegt. Frau Fries erinnert sich noch gut an zwei Klassen, die aus Offenbach kamen. Oberhalb des Mulistalls war das sogenannte „Durchgangslager“, zwei einfache Hütten mit Matratzenlagern, in der die Bergsteiger, die auf dem Weg zur Zugspitze waren, übernachten konnten. Während der Zeit von Frau Fries auf dem Reintalerhof, von 1949 bis Ende 1951, wurde die gesamte Versorgung mit drei Mulis durchgeführt, für die es einen eigenen Mulistall gab. Der Weg zum Reintalerhof war zu dieser Zeit nur für Militärjeeps zu befahren. Am Abend wurde viel Unterhaltung geboten, vor allem selbst erdachte und eingeübte Sketsche und Theaterstücke. Und an eine Begebenheit erinnert sich Frau Fries besonders lebhaft: Ein Gast, der ohne Gepäck, ja sogar ohne Zahnbürste auf dem Hof ankam und viele Wochen blieb. |
|
Eine Aktennotiz vom 13. April 1950 Besprochen wird - die Entlohnung eines Kindermädchens, |
|
In einem Magazin wird am 11. 02. 1950 über die Ferienmöglichkeiten berichtet: "Doch unsere bayrischen Kollegen haben schon seit langer Zeit Ferienheime wieder in eigener Verwaltung. In den landschaftlich schönsten Gegenden der bayrischen Berge stehen die Erholungsheime Raintaler Hof bei Garmisch-Partenkirchen und Hallthurn bei Bad Reichenhall den Kollegen wieder zur Verfügung. Für die Jugend sind mit der Winklmooshütte bei Reit im Winkl, dem Jugendheim Raintaler Hof und der Suttenhütte ganz besondere Ferienmöglichkeiten für Sommer und Winter geschaffen. Hier können Jugengruppen zu ganz billigen Preisen ihren Urlaub gemeinsam verbringen." |
|
| Wohl eine der ersten Postkarten, die nach dem 2. Weltkrieg verschickt wurden. Diese wurde am 27. 7. 1950 gestempelt und ging nach Großschönau in Sachsen. | |
1950 und 1951 gibt es weitere Beiträge im "Aufwärts": |
![]() |
Und in der Ausgabe vom 26. Juli 1951 ist ein kurzer Reisebericht der Gewerkschaftsjugend Kempten zu finden.
|
![]() |
| Im Sommer 2025 entdecke ich auf der Bernadeinhütte im Bücherregal einen ganzen Jahrgang 1951 der Zeitschrift "Der Bergsteiger" aus dem Bruckmann Verlag. Die Anzeigen geben eine Eindruck davon, was damals für Bergsteiger und Bergwanderer angeboten und beworben wurde. |
|
![]() |
![]() |
![]() |
![]() |
![]() |
![]() |
![]() |
![]() |
![]() |
|
Frau Ingrid Schober macht 1951 mit ihren Eltern Urlaub auf dem Reintalerhof: |
|
Sommertage im August 1951 auf dem Reintalerhof. |
Ein wenig feiern mit der Familie, im Kreis von Kollegen und anderen Erholungssuchenden auf dem Reintalerhof. |
Eine pfiffige Aufnahme:
Herzlichen Dank an Frau Ingrid Schober für diese privaten Fotos. |
Und auch hier wird ein wenig genascht!
|
1952 ging der Reintaler Hof wieder an die IG metall zurück. Danach erfolgte ein letzter Umbau des Gebäudes. In den fünfziger Jahren, möglicherweise aber auch schon früher, wird ein bauliches Problem des Reintalerhofs deutlich: Es gibt Bergrutschungen.
|
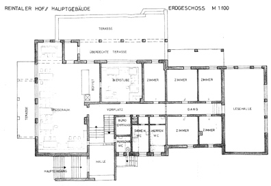
Der veränderte und umgebaute Reintalerhof bekommt dann diese Grundrisse im Haupt- und Nebenhaus. |
In einem Beitrag in der "metall Nr. 23", vom 12. November 1952 berichtet Wilhelm Glade aus der Zeit von 1929, als beschlossen wurde, den Raintaler Hof zu kaufen. Der Artikel findet sich hier. |
![]() |
Der Umbau in den fünfziger Jahren - Ein Beteiligter meldet sich 2021 mit Bildern.Immer wieder denke ich: Nun ist "alles" Material zum Reintalerhof gefunden. Da gibt's nichts Neues mehr. So auch im Juni 2021. Da schreibt mir Herr Knuth aus Stuttgart: "Ich habe gute Erinnerungen zu der Zeit, als das Anwesen von der IGM genutzt wurde. Ich habe damals im Auftrag der Firma DÜRR in Stuttgart sämtliche Dächer neu mit Blech eingedeckt .Es wäre ein Wunder, wenn diese heute noch dicht sind? Nach den Aufnahmen zu urteilen ist es Rost oder Anstrich. In einem interessanten mail-Austausch erfahre ich weiteres von Herr Knuth: "Die Arbeiten, Dacheindeckung mit Blech, dauerten auf Grund der örtlichen Umstände etwa 1/4 Jahr. Gerüst gab es aufgrund der hohen Kosten nicht und ein Kran war auch nicht möglich. Die Blechbahnen wurden im Tal von Coils (=Bandrollen) mit 80 bis 100 Kg auf Länge zugeschnitten mit den Mulis zum Hof transportiert, Werkzeug usw. ebenso. Und Herr Knuth, inzwischen 94 Jahre, schickt mir Fotos von der Arbeit am Reintalerhof, von den Mulis samt Maultiertreiber und von einem Sonntagsausflug mit den Küchendamen zum Schnee. |
|
![]() |
"Unser Kleintransporter der Fa DÜR. Mit diesem wurde Material und Werkzeug von Stuttgart nach Garmisch transportiert.Ich bin auf dem Bild gerade dabei, ein paar Notizen zu machen." |
| "Der damalige Muliführer und das Herz vom Reintalerhof. Mütze mit Inschrift REINTALERHOF" | ![]() |
![]() |
"Die Partnachklamm - ganz schlechte Belichtung!" |
| "Der Reintalerhof während unserer Bauarbeiten. das Dach am Hauptgebäude ist bereits fertig." | ![]() |
![]() |
"Ein Gast mit einem Muliführer, der aus der Nachbarschaft zur Umbauzeit ausgeholfen hat." |
| "Derselbe Muliführer bergauf zum Reintalerhof." | ![]() |
![]() |
"Ein Sonntagsausflug zur Schneegrenze mit den Küchendamen, die uns versorgt haben." |
Im Oktober 1952 wird der Umbau, bzw. der "Wiederaufbau" gefeiert. "Wir geben uns die Ehre, Sie zur Einweihung des wiederaufgebauten |
![]() |
| Kaffee, Brötchen, Brot, Butter und Marmelade gab's zwischen Weihnachten und Silvester 1953. Und andere Leckereien auch ... - Die Speisekarte vom 29. Dezember 1953. |
![]() |
Von 1952 bis 1955 waren Josef und Monika Schels als Arbeiter auf dem Reintaler Hof tätig. 1957 sind sie in die USA ausgewandert und lebten bis 1995 in Chicago, anschließend in Wisconsin. Monika Schels, geb. Rodler, stammt aus Kanau-Waldkirchen im Bayerischen Wald, Josef Schels aus Regensburg. Kennengelernt haben sich die beiden dann auf dem Reintaler Hof, wo Monika als Zimmermädchen und Josef als Hausmeister tätig waren. Im Jahr 1955 heirateten sie. Der Reintaler Hof hat damit auch zu (mindestens) einer Ehe beigetragen. Monika Schels berichtet, dass sie damals, Anfang der fünfziger Jahre, jeden Tag zur Arbeit auf den Reintaler Hof hochgegangen sind. Lebensmittel und aller weiterer Bedarf wurde täglich mit den Mulis transportiert. Und die Touristen wurden täglich abgeholt. |
|
Der Reintaler Hof um 1954 - Gemütliche Rast. |
Der Reintaler Hof von vorne. |
Beim Jugendheim - Ort teils lebhafter Erfahrungen der jugendlichen Gäste. |
Musik vor dem Jugendheim des Reintalerhofs um 1954. |
Großer Waschtag. |
Ein Blick in die Kamera. |
Ein wenig Entspannung nach der Arbeit. |
Eine gemütliche Runde ... |
Die Mulis, Mucki und Liesl, vom Reintaler Hof mit Helmut. |
Herzlichen Dank an Maria, Josef und Margarete Schels nach Wisconsin, USA für diese privaten Fotos! |
1954 wird das Kraftwerk erweitert. Die Gebühr für die Wassernutzung beträgt in diesem Jahr 130 DM. |
|
|
Ein dreifarbiger Prospekt vom Reintaler Hof. |
Blumig wird damals der Reintalerhof beworben: Und die Fotografie von der Nordwest-Seite aus zeigt einen sehr "aufgeräumten" Reintalerhof. Es sieht ganz so aus, als seinen die Außenanlagen erst kurz vor der Aufnahme fertiggestellt worden. |
Passend zum Prospekt links oben wird ein Gemälde bei einem bekannten Kleinanzeigenportal angeboten. Fein gerahmt von einem qualifizerten Bildereinrahmer. Das Bild zeigt ziemlich genau die Titelseite des Prospekts, inkl. des gestreiften Sonnenschirms. Möglicherweise wurde es direkt von dem Prospekt abgemalt. Mehr zu dem Bild konnte ich bis jetzt nicht erfahren. |
|
|
1953 sendet man wieder Karten-Grüße vom Reintaler Hof. |
Helmut mit Mucki, Liesl und Jakob um 1954. |
![]() |
Hü, Hot -- alter Esel - Hot Das Motiv mit den Maultieren und dem Treiber (diesmal im Unterhemd) wird gerne genommen. Im Juni 1954 wird diese Notiz im Echo der Arbeit - Jahrgang 5 vom 30. Juni 1954 einer Mitarbeiterzeitung der Hüttenwerke Oberhausen veröffentlicht. Interessant, dass die Sozialabteilung Werksangehörigen zu einem Erholungsaufenthalt verhilft. |
![]() |
Dieses Foto von 1954 zeigt eine Gruppe von Bergwanderern, beim Aufbruch oder bei der Rast vor dem Reintalbauern. Die Herren in kurzen Lederhosen, die Damen im Dirndl. Entwickelt wurde das Foto von Foto Brink in Forchheim auf einem Agfa Lupex-Papier. |
|
Der Speisesaal im Reintaler Hof. |
Das Bierstüberl, Ort vieler und vermutlich fröhlicher Umtrunkrunden.
|
Der Blick vom Ferienheim Reintalerhof auf die Alpspitze im Winter. |
Wieder eine freundliche Urlaubskarte an den Konsum in Holzhausen im Kreis Lübbecke, Westfalen. |
Und ein weiteres Motiv. |
|
|
|
Ein Fundstück von 2019: Ein rechteckiger Stocknagel in silberfarbener Ausführung. Dargestellt der Reintalerhof in seiner Außengestalt um 1950 oder etwas später. Das Brünnerle ist da und das Eingangsportal und - natürlich - die Alpspitze wieder malerisch rechts vom Hof in Szene gesetzt. (Nach wie vor frage ich mich, ob denn jemals jemand aufgefallen ist, dass die Alpspitze nord-westlich vom Reintalerhof zu sehen ist und nicht an den Stellen, an denen der markante Berg auf den Postkarten, etc. hinmontiert ist.) |
![]() |
Am 28. 2. 1955 wird ein vermisster Gast des Reintalerhofs nur noch tot aufgefunden. |
| Am 23. 4. 1955 wird in der Passauer neuen Presse - Niederbayerische Zeitung ein tüchtiger Küchenbursche gesucht. 100 DM soll er als Lohn bekommen, bei freier Kost und Logis. | ![]() |
In den Unterlagen zum Reintalerhof taucht um 1956 ein Plan für die Trinkwasserversorgung durch das Forstamt auf. Und 1958 wird wieder die Trinkwasserversorgung erwähnt. 1959 wird die Kraftanlage mit einer stärkeren Turbine ausgerüstet, so dass 86 PS erzeugt werden können. Der Reintalerhof bezahlt nun jährlich DM 400 Wassernutzungsgebühr. |
|
|
1957 werden in der Passauer neue Presse - Niederbayerische Zeitung im Frühjahr und im Herbst wieder Anzeigen geschaltet. |
|
Nach wie vor wird der hochalpine Eindruck durch eine Fotomontage bestärkt: Direkt hinter dem Reintalerhof die Alpspitze! |
Im März 1958 schreiben Lotte und Heinz an die Familie Ulenbrank in Dortmund Kirchhörde: "Ihr Lieben! |
Im Juli 1958 verfasst Elisabeth Mumm, geb. Kähler, eine kurze Geschichte des Reintalerhofs. |
|
![]() |
![]() |
Eine seltene Postkarte, wohl vor 1962. Der Anbau, der Leseraum, ist zur Zeit dieser Aufnahme noch nicht erbaut. |
![]() |
|
Ein Gruß von 1962 nach München: Dich hoffentlich wohlauf. Lb. Grüße deine Käthe König" (Objektnummer 2216 - Marktarchiv Garmisch-Partenkirchen) |
Im August 1962 sind Anni und Adolf von den Bergen überwältigt. Zwei- und Dreitausender sehen sie im Reintal. Und so schreiben sie an die Familie Walter Schulte: "...
Es ist für uns doch ein wirkliches Erlebnis die 2 – 3 Tausender direkt vor der Tür. |
| Hier nochmals die Nordseite des Reintalerhofs. Jetzt ist der Anbau, der Fernsehraum, schon errichtet. Links hinter dem Eingang scheint ein Prinz I oder II zustehen. |
![]() |
|
Eine ähnliche Perspektive wie die Karte rechts. Und wieder die Alpspitze hochalpin hinter dem Reintalerhof positioniert. |
Eine sw-Aufnahme, die in vielen Ansichtskarten wieder auftaucht. Diese Karte wurde 1963 verschickt. |
Der Reintalerhof im Reintal war natürlich auch eine erste Station auf dem Weg zur Zugspitze. (Mit freundlicher Genehmigung durch Huber Images - Garmisch-Partenkirchen) |
|
|
Im August 1959 verhandelt das Bay. Forstamt Partenkirchen mit der IGEMET im Rahmen des Verkaufs die Übernahme der noch offenen Mieten der Familie Suttor. |
Am 29. September 1959 legt dann Herr Steuer von der IGEMET einen Aktenvermerk dazu an. |
|
Am 21. Oktober mahnt dann das Forstamt die immer noch nicht überwiesenen Mietkosten bei der IGEMET an. |
Der Bauernhof, also der ursprüngliche Reintal-Bauer, wurde bis zuletzt von Pächtern bewirtschaftet, Bis zuletzt wohnten immer wieder Holzarbeiter und Forstmitarbeiter zeitweise im Bauernhof. Und diese ließen es sich nicht nehmen, am Abend zum Reintalerhof rüber zuschauen, auf ein Bier, ein wenig Unterhaltung. |
Die Kapelle des Reintalbauern mußte 1965 als Neubau in den alten Massen restauriert, aber an anderer Stelle aufgebaut werden und erfreut noch heute die Wanderer. |
|
| Anna Siegel verfasste am 4. 7. 1965 einen interessanten Bericht zur Einweihung der neu erbauten Kapelle am 6. Juni 1965. Vom pfingstlichen Geist sprach damals das geschäftsführende Vorstandsmitglied der IG metall, Fritz Biggeleben. Hier der nette Bericht von Frau Siegel aus den sechziger Jahren |
|
![]() |
![]() |
|
Auch auf dieser Karte hat der Fotograf getrickst. |
Eine tief verschneite Winterlandschaft, die Sehnsucht weckt: |
|
Wohl aus den sechziger Jahren: Traumhaftes Winterwetter und man ist auf dem Weg zur Partnachalm und zum Reintalerhof |
Ein Prospekt des Reintalerhofs aus den sechziger Jahren. Der Pensionspreis für 3 ausreichende Mahlzeiten sowie Übernachtung lag bei DM 12,- für Erwachsene und DM 5,50 für Kinder bis 6 Jahre. |
Die Reise der Anna Heigl im Juli 1960 zum Reintalerhof |
|
|
Da wird man doch neugierig: Eine Anzeige des Reintalerhofs bei Garmisch-Partenkirchen. |
Da besorgt man sich einen passenden Führer aus dem Adam Verlag
|
|
Da findet sich dann rasch die Beschreibung des Reintalerhofs |
Und so weit ist der Anmarsch?
|
|
Ankunft am Bahnhof - Oder gleich schon der Ausflug mit der Zugspitzbahn? |
So romantisch ist der Weg über die Partnachalm.
|
|
Na endlich - wir sind da! |
Und werden schon vergnügt - oder skeptisch(?) erwartet.
|
|
Blick über den Reintalerhof |
Und jetzt kann die Erholung im Gebirge beginnen ....
|
Ein Ausflug zur Partnach-Alm |
Fast 50 Jahre später wird Anna Heigl den Reintalerhof nochmals besuchen. |
|
Von 1960 bis 1968 war Christine Schober am Reintaler Hof als Büro- und Büfettkraft beschäftigt. Sie hatte sich über das Arbeitsamt gemeldet und bei der IG metall in Frankfurt für diesen Arbeitsplatz am Reintalerhof beworben. Viele neue Geschichten und Erlebnisse wurden mir vom Ehepaar Schober erzählt und schöne Fotos zur Verfügung gestellt: |
|
Eine wesentliche Veränderung in den vergangenen 50 Jahren ist das Wachstum der Wälder rings um den Hof. In den 60er-Jahren gab es noch viele freie Ausblicke vom Hof in das Wettersteingebirge. Und tatsächlich konnte man früher zum Beispiel auf dem Weg zum Reintalerhof die Alpspitze sehen. |
Und hier ein grandioser Blick in das Oberreintal.
|
Der Reintalerhof von oben. Links sieht man den Personalbau mit der Garage für den Unimog. |
Das sogenannte Jugendheim, in dem eine Tischtennisplatte für die Gäste bereit stand. Unterhalb des Jugendheims war Anfang der sechziger Jahre noch ein Ziegenbock zuhause, der sich einen Spaß daraus machte, die Gäste, sobald sie unachtsam passieren wollten, mit seinen Hörnern anzugreifen. Wohl auch deshalb mußte er bald seinen Platz räumen und vom Reintalerhof verschwinden. |
Die Zwergerl unter südländisch anmutendem Strohdach haben lange Jahrzehnte den Brunnen vor dem Haus bewacht. |
Barry, der Haus- und Hofhund mit zwei Kätzchen (die aber nicht lange geblieben sind). |
Familie Schönbeck, die damaligen Hausverwalter, mit Gästen vor der imposanten Kulisse des Wetterstein. |
Eine Personalfeier u. a. mit den Köchinnen Frau Moser und Maria Oberauer mit ihrem Mann Sepp, dem Fahrer. Der Betrieb des Reintalerhofs war sehr personalintensiv. Gearbeitet wurde an sechs Tagen die Woche, je nach Arbeitsplatz von 7.00 bis 22.00 Uhr. Der Verdienst lag bei ca. 230 DM im Monat. |
Der Hausmeister, in den sechziger Jahren Dieter Schober, mußte sich auch um das Kraftwerk an der Partnach kümmern. Das Kraftwerk, das den Reintalerhof und den Reintalbauern mit Strom versorgte. |
Ein Blick in das Kraftwerk. |
![]() |
Hier sehen wir Dieter Schober bei der Arbeit im Kraftwerk. Mehr Aufmerksamkeit mußte dem Staubecken im Westen des Reintalerhofs gewidmet werden. Dieser kleine Stausee, der im Sommer auch als (Kurz-) Badesee genutzt wurde, mußte einmal wöchentlich, im Herbst auch noch öfter gereinigt werden, damit die Rechen nicht verstopften. Die eigene Trinkwasserversorgung wurde vom Wasserwerk Garmisch-Partenkirchen (Herr Pohrer) regelmäßig überprüft. Eine weitere Aufgabe des Hausmeisters war es, für die Heizung des Hofs zu sorgen. Die gesamte Wärmeversorgung wurde durch eine Holzheizung sichergestellt. Und nicht zuletzt ein Relikt aus der guten alten Zeit, eigentlich nur für Hotels der Luxusklasse, war die Aufgabe des Hausmeisters bis 1964: |
Hier kommt Holz - aber das wird von den Mulis in die falsche Richtung gezogen. So wurde noch in den sechziger Jahren das Holz durch den Forst abtransportiert. |
Aber jetzt hat der Unimog wieder freie Fahrt. |
![]() |
|
![]() |
Wintersport wurde auf dem Reintalerhof groß geschrieben. Hier erleben wir ein Skirennen, direkt unterhalb des Hofs, hinab in Richtung Partnach. Über Unfälle und spektakuläre Stürze ist nichts bekannt geworden. |
Nicht jeder Gast wollte oder konnte ein Skifahrer werden. Und so fing man im Winter 1963 an, hinter dem Reintalerhof eine Eisstockbahn anzulegen. |
Der Eismeister Dieter Schober. |
![]() |
Der nächste Winter kommt bestimmt. Dabei war die Heizung mit Holz eine Zusatzversorgung.
Und hinter den Arbeitern schaut die Alpspitze herüber. |
Die Ehe der Familie Schober nahm ihren Anfang auf dem Reintalerhof. |
![]() |
Ganz herzlichen Dank an Christine und Dieter Schober für ihre vielen Informationen und Bilder aus den sechziger Jahren.
|
|
|
Diese Karte ging nach Meiningen in Thüringen.1962. Diese Ansichtskarte scheint über viele Jahre die "Standardkarte" des Reintalerhofs gewesen zu sein. Vermutlich auch die erste Ansichtskarte, die gedruckt wurde. |
Eine Luftaufnahme des Reintaler Hofs um 1963. |
1966 ist die IGMET als Unterzeichner und damit Eigentümer in den Unterlagen zu finden. Geschäftsführer sind damals Hermann Meinzer und Albert Kern. |
|
|
Wohl in den sechziger Jahren plant der ehemalige Ski-Rennläufer und Erfinder, Walter Clausing, damals Besitzer von vier Ski-Liften, ein großes Projekt. |
Es wird angeführt, dass die Landschaft nicht beeinträchtigt wird. Es würde ein schneesicheres Gebiet erschlossen, das man dann für weitere Winter-Olympiaden und Weltmeisterschaften nutzen könnte. Viele Jahre, Jahrzehnte später scheint Walter Clausing (1919 - 2020) bei Livigno das Skigebiet Carosello 3000 erschlossen zu haben. Ein Interview findet sich bei Facebook. Überhaupt scheint Walter Clausing ein sehr rühriger Mensch gewesen zu sein, der viele Erfindungen patentieren lies, unter anderem die aufsteckbare Skispitze. Am 31. Januar 2024 schreibt Nicola Förg in der Frankfurter Rundschau von ihren Erlebnissen in Livigno und erwähnt dabe auch Walter Clausing. Hier gehts zum Artikel. |
In den sechziger und den beginnenden siebziger Jahren hatte das Ferienheim Reintaler-Hof seine Blütezeit. Ein munteres Treiben scheint Sommers wie Winters im Reintaler Hof geherrscht zu haben. Um das Wohl der Gäste kümmerten sich viele Mitarbeiter, darunter die Köchin Maria Oberauer und der Fahrer und Hausmeister Sepp Winter. Die Gäste dieser Zeit kamen miit der Bahn oder auch schon mit dem eigenen PKW. |
|
| Die Beschreibung des Reintalerhofs aus dem Werbeprospekt "Kur-, Erholungs- und Ferienheime der Industriegewerkschaft metall für die Bundesrepublik Deutschland" aus den 70iger Jahren. |
![]() |
In den sechziger Jahren scheint diese Winterpostkarte sehr verbreitet gewesen zu sein. Hier zwei Exemplare: Am 1. März 1967 wird diese Karte bei der Post gestempelt. "Liebe Maria und Sepp |
![]() |
![]() |
Die gleiche Winterpostkarte wie oben. Diese wird am 17. Januar 1968 an die Familie Kutscherauer in Regensburg geschickt. Bruno schickt diese Grüße und schreibt: "Es sendet euch viele Grüße der Bruno. |
Ein Karte, ungelaufen, wohl aus den 60er-Jahren. Äußerst interessant - Bislang wuchtete sich hinter dem Reintalerhof die Alpspitze auf (s. oben). Nun ist sie verschwunden. Wie auch immer. Anhand der Bäume lässt sich das ungefähre Alter der Aufnahmen gut erkennen. Und wer's bis hier noch nicht weiß, die Alpspitze war und ist westlich des Reintalerhofs und diese Ansichten hier schauen immer nach Osten. |
![]() |
|
Winterlicher Talkessel mit Blick auf das Wettersteingebirge (Mit freundlicher Genehmigung durch Huber Images - Garmisch-Partenkirchen) |
|
Das Hinweisschild zum Reintaler-Hof |
Ein Sonnenbad in der Wintersonne. Im Hintergrund die Ski. Der Reintalerhof war ja für viele Touristen der erste Kontakt mit dem Skilauf. Von Sepp Winter wurde Ende der sechzigrer Jahre ein Skilift installiert, der das mühselige Aufsteigen überflüssig machte. |
Tiefer Winter im Reintal. |
Die Sonne kommt wieder und lässt den Hof mit Umgebung in zauberhafter Winterlandschaft erstrahlen. |
Bis 1971 war der Reintalerhof ganzjährig geöffnet. Und so war die Zeit über Weihnachten und Neujahr ein ganz begehrtes Datum, um zwei, drei Wochen Urlaub machen zu können. Das Interesse war groß und wurde immer größer. Jeder wollte über Weihnachten auf den Reintalerhof. |
|
Endlich angekommen auf dem Reintalerhof. |
Vor dem Haupteingang: |
Die Gäste werden schon erwartet ... |
... gleich ist es soweit: Das Essen wird verteilt. Das Verwalterehepaar Peter und Siglinde Neumayer, tatkräftig unterstützt von der Serviererin Gerti Nummer. |
Hier kann man es aushalten, in der "Nische": |
Und am Abend gab es dann, einmal wöchentlich, die begehrten, weil höchst interessanten Diavorträge von Sepp Winter. In diesen Vorträgen berichtete er von seinen Bergtouren im In- und Ausland. |
Viele der Stammgäste auf dem Reintalerhof haben auch gerne mal tatkräftig mitangepackt.Hier zum Beispiel beim Hofabspritzen. Der Reintalerhof hatte eine eigene Tragkraftpumpe, Feuerwehrschläuche, einen Hydranten und weitere Ausrüstungsgegenstände um einen Brand im Notfall selbst löschen zu können, denn bis die Feuerwehr aus Partenkirchen auf dem Hof gewesen wäre, nicht auszudenken. Die Schläuche wurden auch zum Hofabspritzen benutzt. Die Ausrüstungsgegenstände standen im Feuerwehrschuppen (Teil des großen Schuppens) auf der Liegewiese hinter dem Haus. Der Schuppen wurde abgerissen, als der Reintalerhof geschlossen wurde. |
Nach getaner Arbeit! |
Auf einem Betrieb wie dem Reintalerhof gab es immer etwas zu tun.
|
Wolfgang Frei und Peter Neumayer.
Den heutigen Zustand dieses Stausees zeigt das Bild hier. |
Auf dem Weg nach Partenkirchen. |
Das "geschlossene Ferienheim" der I.G.M. Keine Restauration. Nach Informationen von Maria Oberauer hatte man im Reintaler Hof, bevor er aus steuerlichen Gründen "geschlossen" wurde, also nur noch für Mitglieder offen war, bis zu 100 "Passanten" pro Tag, also Tagesgäste/Touristen zu bewirten. Und da galt es für die Mitarbeiterinnen schon früh aufstehen um alles vorzubereiten und zehn und mehr Kuchen und Torten zu backen. |
Entspannung und Erholung pur - ein Buch lesen, nichts tun ... |
... oder höchsten mal intensiv und lustvoll schaukeln. |
Und der Barry passt auf, dass alles friedlich abläuft. |
Ein wenig Entspannung und Spaß am Brunnen: |
Arbeit macht Durst,
Ein Auswahl frischer Getränke zeigt die letzte Karte des Reintalerhofs.
|
|
Auch der schönste Urlaub geht zu Ende! |
|
Skifahren mit eigenem Schlepplift. Noch bis Anfang der 80er Jahre wurde jeden Winter der hauseigene Skilift aufgebaut, und die Forstwiese unterhalb der Kapelle wurde zur Skipiste. |
|
|
Ein Prospekt des Reintaler Hofs, wohl aus der Zeit um 1975 |
(Klick auf das Bild öffnet die Originalansicht) |
|
Eine Postkarte aus den siebziger Jahren. Und da hat er die Postkarte auch gar nicht mehr abgeschickt ... |
|
Im Jahr 1976 wird die Gebühr für die Wassernutzung für das Kraftwerk auf DM 250 festgesetzt. Das Ende des Erholungsheims Reintaler Hof kam nach dem schneereichen Winter 1981/82.
|
|
1977 |
|
![]() |
Ende September 1977 sind die Hirsche und die "Darmmassage" Inhalte einer Karte nach Elbingerode im Harz: "Heute mittag bei schönsten Sonnenschein hier angekommen, in 1100 m Höhe Ein schönes Zimmer mit Balkon, da war es mittags sehr heiss. Auch haben wir schon eine kleine Bergwanderung gemacht. Es ist hier ruhig aber in der Nacht sollen die Hirsch bis vors Haus kommen. Brunstzeit das soll bis früh gehen. Na wir werden ja sehen. Jedenfalls kommen keine Auto da rauf Wir wurden von Garmisch mit einem Jeep geholt. ¾ Stunden Darmmasssage war das. |
1978 |
|
Im Januar 2023 meldet sich Herr Weimann. Er schreibt mir u. a.: Und im Juli 2023 stellt er mir Fotografien von Dias zur Verfügung, die er 1979 bis 1980 aufgenommen hat. |
|
|
Der Hof im Herbst. Sehr aufgeräumt sieht es aus. |
Auch von Weitem fotografiert: Sehr ruhig. |
Das Wasser läuft ins Stauwehr. |
Die Kapelle. Noch ist das später verkaufte Kreuz, in der Kapelle. |
Auch vom Westen: Aufgeräumt. |
Aufgeräumt und alles sehr ordentlich. |
Der Weg zur Partnachalm. |
Das "Chalet" vor der 1860er-Hütte. |
Winter in Partenkirchen ... |
... Aufnahmen aus der St. Antonstraße. |
Der Weg zur Partnachalm im tiefen Winter. |
Der "Spielsalon" ... |
Und Herr Weimann in seinem Element: |
Wenn ich die Bilder anschaue, kommt bei mir ein Gefühl von Sehnsucht auf und der Gedanke, dass es eine schöne, beschaulichere, vielleicht auch zufriedenere Welt gewesen sein mag - dort im Werdenfels? |
Ein schneereicher Winter 1980! Tatsächlich, wie die Bilder von Peter Neumayer zeigen. |
![]() |
Hinter der Schneefräse folgt der Traktor um den Weg weiter zu räumen. |
Ein wenig freundlicher schon dieses Bild. |
Der letzte Winter bot noch so manche Überraschung und einen "Bergnot"-Einsatz. Peter Neumayer in Bergnot? Gegen Morgen dann die Überraschung:
|
|
Über viele Jahre stand ein "Relief", ein plastische Modell der Berge rund um den Reintalerhof im Eingangsbereich. Peter Neumayer berichtet mir, ebenfalls im Oktober 2020: Die Geschichte mit dem Relief, bzw. 3D-Modell der Garmischer Berge bleibt im Oktober 2020 spannend:
Wer sich näher für das Herstellen solcher Bergreliefs interessiert, |
![]() |
Zu den letzten Gästen auf dem Reintalerhof dürfte wohl die Familie Wehrhahn zählen. Im Sommer 1982 haben sie sich nochmals vier Wochen Ferien bei herrlichem Wetter gegönnt. Das Zimmer, Küche und Speisesaal und die Alpspitze sind auf dieser Aufnahme ordentlich vermerkt. Beliebte Wanderziele von Familie Wehrhahn waren unter anderem die Partnachklamm, Bockhütte, Oberreintalhütte, Schachen (von dort ist der Reintaler Hof sehr gut zu sehen), Meilerhütte, Blaue Gumpe (ein Juwel, jetzt leider zugeschwemmt), Reintalangerhütte, Partnachursprung, Knorrhütte, Zugspitze, Kreuzeck, Steubensee und Alpspitze. |
Und Familie Wehrhahn war schon früher zu Gast auf dem Reintalerhof, insgesamt vier Mal. |
|
Auch 1975 haben sie ein Zimmer reserviert. |
Und hier die Bestätigung für eine Reservierung 1978, unterschrieben von Peter Neumayer. |
Den Kindern der Familie Wehrhahn gefällt es ausnehmend gut, auf dem kleinen Karussell die Bergkulisse kreiseln zu lassen. |
Und auch der Brunnen mit den Zwergerln ist im Sommer 1982 noch in Betrieb. |
Eine geradezu surrealistische Bildkomposition: |
Aufstieg geschafft, die Meilerhütte ist erreicht. Zeit für eine ausgiebige Brotzeit, denn der Weg vom Reintalerhof bis zu Hütte schleppt sich. Herr Wehrhahn mit Tochter im Sommer 1982. |
Auch für Familie Wehrhahn wurde es Sommer 1982 Zeit, endgültig Abschied vom Reintalerhof zu nehmen. Und ganz problemlos war dann die Abreise vom Reintalerhof nicht. Denn während des vierwöchigen Aufenthaltes gab es eines Nachts ein
|
Die Rechnung bitte!
|
Möglicherweise hat auch der beginnende Skandal um die Neue Heimat mit zur endgültigen Schließung beigetragen. Denn am 8. Februar 1982 erschien ein Bericht im Spiegel, in dem aufgedeckt wurde, dass sich mehrere Vorstandsmitglieder unter der Führung von Albert Vietor persönlich, zum Teil auch direkt an den Mietern, bereichert hatten. Eine Woche später entließ der Aufsichtsrat unter dem DGB-Vorsitzenden Heinz Oskar Vetter die Beschuldigten. Die Abwicklung der gewerkschaftseigenen Neuen Heimat begann ... Bis zur geplanten Schließung wurden umfangreiche Renovierungsarbeiten durchgeführt, Investitionen in die Küche vorgenommen und der gesamte Hof "auf Vordermann" gebracht, damit der Betrieb durch einen neuen Besitzer schnell wieder aufgenommen werden konnte. Die Gewerkschaft plante und rechnete damit, die Hof möglichst schnell verkaufen zu können. Sogar einen Fernsehbericht gab es, in dem über die Schließung des Reintalerhofs berichtet wurde. |
|
Vorder- und Rückansicht des Reintalerhof. Die letzte offizielle Postkarte. Fotografiert von Foto Blumental aus Garmisch-Partenkirchen. |
Vermutlich eine der letzten Postkarten aus dem Reintaler Hof, bevor er 1982 geschlossen wurde. |


































































































































































































